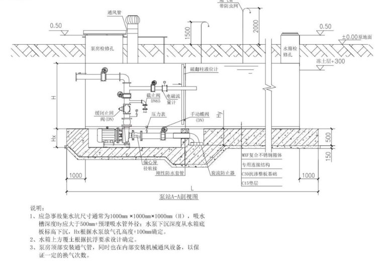
抗浮式地埋泵箱一体化消防泵站_津消_厂家定制生产安装
抗浮式地埋泵箱一体化消防泵站_津消_厂家定制生产安装
产品价格:¥400.00(人民币)
  • 规格:完善
  • 发货地:天津天津
  • 品牌:
  • 最小起订量:1
  • 免费会员
    会员级别:试用会员
    认证类型:企业认证
    企业证件:通过认证

    商铺名称:元炜科技(天津)有限公司

    联系人:苑经理(小姐)

    联系手机:

    固定电话:

    企业邮箱:756247296@qq.com

    联系地址:天津北辰大厦2106

    邮编:

    联系我时,请说是在新型建材网上看到的,谢谢!

    商品详情
      产品参数
      品牌津消
      加工定制支持
      是否进口
      产地天津
      是否加工定制
      功能生活水箱,消防水箱,供水设备
      设备名称热镀锌水箱
      售后厂家服务
      规格根据客户定制
      高度根据客户要求定制
      容积根据客户要求定制
      可售卖地全国
      材质镀锌钢板















    0571-87774297